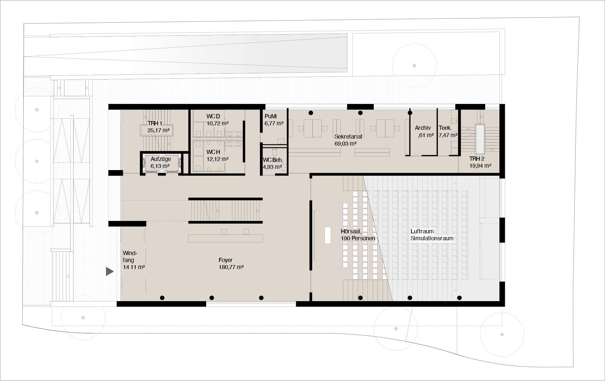
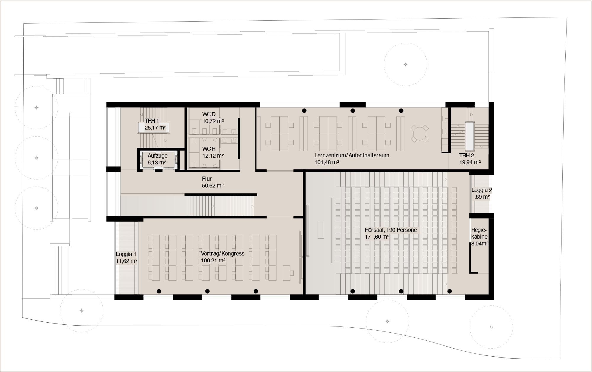
Konzeptstudie 1, BAUFELD 7
„Zentrale Ausbildungsstätte“
Die hier abgebildete Konzeptstudie beinhaltet die Errichtung eines Kompetenzzentrums
für die Aus- und Weiterbildung bestimmter Berufe. Neben allen Einrichtungen
beherbergt die Studie einen geräumigen Lehr- und Hörsaal. Über vier Geschossebenen
können hier die Auszubildenden ihr erworbenes Wissen festigen und erweitern.
ERDGESCHOSS
1. Obergeschoss
2. Obergeschoss
3. Obergeschoss
Sockelgeschoss
Tiefgarage